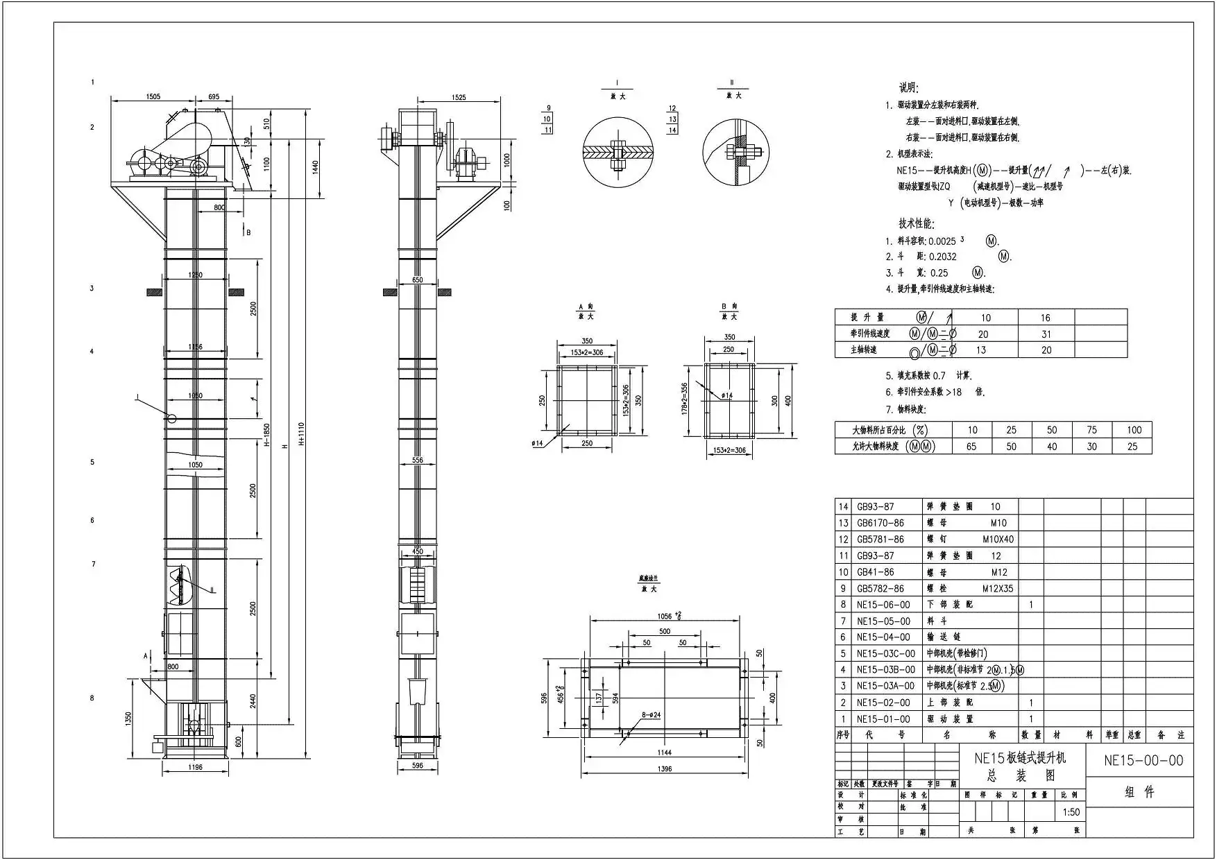
提升機在日產生產中用途廣泛,根據提升產量分為帶式提升機、環鏈提升機、板鏈提升機、不銹鋼提升機,主要用于粉體顆粒輸送提升,采用流入方式進料,傾斜料斗接料,減少物料與殼體的擠壓摩擦,提高了物料的完整性。該設備輸送高度至60米,產量0-500噸每小時,主要組成部件為電機、減速機、輸送鏈、殼體。
根據物料輸送量選擇提升機:

提升機的主要組成分別為:機首部件、中部部件、下部部件、鏈條以及料斗部件。機頭是由由上部機殼,主動軸部件,減速機、連軸器、電機等組裝成一體。中段機殼是根據需要提升的高度、選擇不同數量的中部機殼迭加起來既能滿足需要。
下部部件是由底部機殼,從動軸部件及張緊裝置結成一體。而下部部件的機殼側面有門可以觀察,可以對其內部進行檢查如清掃。鏈條材質為圓鋼焊接環鏈。料斗用螺母定在鏈條的接頭上。不同高度的斗提機現套相應數量的鏈條、接頭、及料斗。


新鄉市力威機械設備有限公司
聯系人:尚經理
手機:15736969926
郵箱:3043144287@qq.com
地址:河南省新鄉西環工業園區